网站首页
关于我们
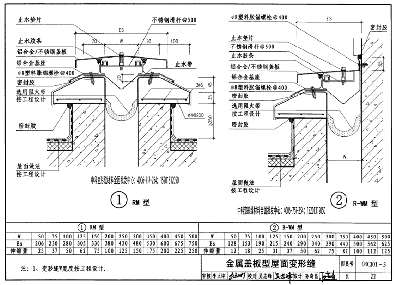
变形缝
拉缝板
标准图集
新闻资讯
工程案例
联系我们
变形缝图集
第17页
第18页
第19页
第20页
第21页
第22页
总数:104
1..
上一页
11
12
13
14
15
16
下一页
..18
页次:14/18
常熟市沙家浜镇朕钛变形缝装置厂
地址:江苏省苏州常熟沙家浜镇
联系人:许经理
手机:13962309153
电话:0512-52573785
网址:www.zhentai168.com
在线QQ:524152217
领取样品
免费报价
电话咨询